Technical Doors & Frames Shop Drawings
Eliminate site installation conflicts with comprehensive door shop drawings. We provide manufacturers and contractors with millwork-level precision for every opening, ensuring that hollow metal door details and hardware preparations are perfectly coordinated with wall types and structural clearances
24-48
Hours Initial Submittal
Complete
Hardware Coordination
Fire-Rating & UL
Compliance Verified
9 Specialized Door & Frame Drafting Solutions
Every building opening requires a specific balance of security, fire safety, and aesthetic finish. Our door shop drawing company specializes in the minute details. From strike plate heights to reinforcement for closers, our millwork shop drawing services ensure that every unit is ready for the shop floor.
Hollow Metal Door Shop Drawings
We provide detailed schematics for heavy-duty commercial steel doors. Our hollow metal door details include internal stiffener locations, skin gauges, and precise cutouts for glass kits or louvers, ensuring maximum durability for high-traffic areas.
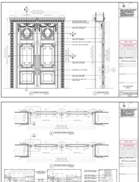
Double Door and Astragal Details
For wide openings, we provide precise detailing for pairs of doors. This includes active/inactive leaf designations, removable mullions, and coordinating the meeting stiles to ensure weather-tight and secure closure.
Fire-Rated Opening Documentation
We ensure all door shop drawings for fire-rated openings comply with NFPA 80. Our drawings clearly call out label requirements, temperature rise ratings, and specialized smoke seals required for life-safety compliance.
Storefront and Entrance Detailing
Beyond standard rooms, we detail main entrance systems. These door shop drawing services include coordination with glass thicknesses, transoms, and sidelights, providing a unified look for the building’s "face."
Sliding and Pocket Door Schematics
We detail the track systems, wall pockets, and floor guides for space-saving sliding units. Our door shop drawings company focuses on the clearance requirements within the wall cavity to prevent site clashes.
Acoustic (STC) and Lead-Lined Details
For hospitals or recording studios, we provide specialized door frame shop drawings that include lead-shielding details or acoustic gaskets. We ensure the specialized core materials are clearly defined for the manufacturer.
Steel Door Frame Shop Drawings
Our doors & frames shop drawings cover various profiles, including wrap-around, cased-open, and shadow-line frames. We specify anchor types (whether for masonry, wood stud, or steel stud) to ensure a rigid and plumb installation.
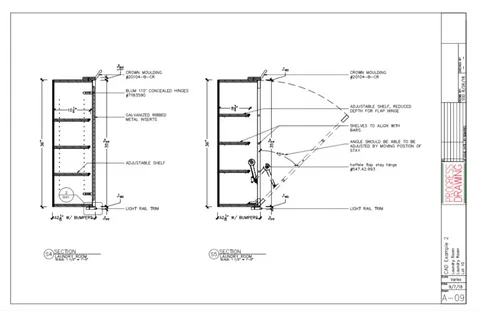
Hardware Coordination & Schedules
The most common site errors occur in hardware prep. Our door and frame shop drawings integrate your hardware schedule directly into the elevations, detailing the exact locations for hinges, locks, exit devices, and electronic strikes.
Hardware Coordination & Schedules
The most common site errors occur in hardware prep. Our door and frame shop drawings integrate your hardware schedule directly into the elevations, detailing the exact locations for hinges, locks, exit devices, and electronic strikes.
Outsourced Door Shop Drawings: Efficiency in Drafting
Modern door shop drawing companies leave no room for drafting delays. By utilizing outsourced door shop drawings, you can offload the technical burden of detailing hundreds of unique openings to a dedicated team. Our door shop drawing company provides a scalable workforce that can handle massive high-rise projects or complex hospital builds with ease.
When you outsource door shop drawings, you gain access to specialists who understand the difference between a cold-rolled and a galvanized frame. Our online shop drawing services act as a 24-hour extension of your office. You provide the hardware schedule and floor plans; we deliver a coordinated submittal package that includes every hollow metal door detail and frame section needed for approval. This allows your estimators and project managers to focus on procurement and site delivery while we handle the geometric precision
Key Benefits of Professional Doors & Frames Shop Drawings
Accelerated Approval Cycles
Architects and consultants often reject submittals that are vague or missing critical hollow metal door details. Our drawings are known for their clarity and comprehensive data, which leads to faster approvals. By providing a “clean” submittal that addresses fire ratings, wall anchors, and clearances upfront, we keep your project moving toward the fabrication phase without the typical back-and-forth delays.
Eliminated On-Site Hardware Rework
The most significant benefit of our door shop drawing services is the elimination of field modifications. By coordinating hardware locations, strike preparations, and closer reinforcements in the drawing phase, we ensure that every door arrives at the site ready to be hung. This prevents the costly and time-consuming practice of field-drilling or welding on finished products.
Improved Procurement Accuracy
Our door shop drawings company provides integrated schedules that serve as a master checklist for your purchasing department. Having a precise count of frame types, door sizes, and handedness reduces the risk of ordering incorrect materials. This level of documentation ensures that procurement is based on coordinated shop drawings rather than preliminary architectural plans.
Two Leading Services of Our Company
When it comes to the expertise of CAD Drafters, the list is quite long. We have wood framing, LVL, and glulam shop drawing services related to door and frame shop drawings that have proved to be extremely beneficial for contractors and homeowners. Here are two of its prime examples:
Comprehensive Hardware Virtual Fitting
The leading cause of door failure on-site is hardware clash. Our primary service involves a virtual hardware audit. We cross-reference your door schedule, hardware sets, and architectural plans to ensure that the lockset doesn't hit the glass lite and that the closer reinforcement is placed at the correct height for the specified arm. This door shop drawing company service ensures that when your doors arrive, they are 100% ready-to-hang without any field modifications or re-ordering of parts.
CNC-Ready Fabrication
We don't just produce PDFs. For hollow metal door shop drawings, we can provide data exports that sync with your shop’s CNC machinery. This includes precise coordinate data for hinge preps, lock strikes, and wire-pull holes for electrified hardware. By utilizing our door shop drawing services, you reduce the manual layout time in your shop, allowing your fabrication team to produce more units per day with significantly higher precision and lower material waste.
Trusted Clients




9 Reasons Why Our Door and Frame Shop Drawings Stand Out
- Clear Visuals
- Scalable Production
- Reliable Delivery
- Hardware Mastery
- Standards-Compliant
- Acoustic & Fire Focus
- Integrated Schedules
- Anchor Accuracy
- Quick Revision Cycles
Client Testimonials
Here Are Some Of Our Related Shop Drawings Services
Door Shop Drawings Company Supporting the US Market
Door standards in the US, such as those set by SDI (Steel Door Institute) and HMMA, are rigid. As a specialized door shop drawings company, we tailor our output to meet the high expectations of the American construction industry.
Whether you are working on a school in California requiring specific seismic anchors or a hotel in New York with strict acoustic requirements, our door and frame shop drawings are built to pass the most rigorous architect reviews. We understand the nuances between knock-down (KD) frames common in the Midwest and the welded frame preferences in the Northeast. By providing door shop drawing services that respect regional labor habits and local fire marshal requirements, we help you get from submittal to “approved for fabrication” faster than any local firm.
Industries We Serve with Expert Doors & Frames Shop Drawings
Education.
Healthcare
Commercial
Hospitality
Industrial
Transportation
Frequently Asked Questions
What is included in a typical door shop drawing submission?
We provide a cover sheet, door and frame schedules, elevations for every opening type, section details for heads, jambs, and sills, and a hardware location chart.
Do you coordinate with the hardware consultant?
Yes. Our door shop drawing services involve reviewing the hardware consultant’s specifications to ensure the door and frame preps match the specified items.
Can you detail both hollow metal and wood doors?
Absolutely. We provide both hollow metal door shop drawings and wooden door frame drawing sets, often coordinating them in the same project package.
How do you handle fire-rating requirements?
We call out the specific UL or Warnock Hersey requirements on each drawing, ensuring the manufacturer knows exactly which labels to apply.
Why should I choose your door shop drawing company?
We specialize in the “miscellaneous” details that others miss, like floor clearances for thick carpets or reinforcement for heavy-duty surface closers, ensuring a perfect fit.