Shop Drawing Services in Montana
Every successful construction project begins with a detailed, accurate drawing plan. If you understand its worth and are looking for the best shop drawing services in Montana, we bridge the gap between design and real-time construction. Our experts understand your concept and turn it into instructions labor can use to build. Using our assistance, you can experience fewer questions, fewer delays, and less rework.
Healthcare Facilities
Commercial Complexes
Educational Institutions
Manufacturing Plants
Residential Developments
Hospitality & Retail Spaces
Why Shop Drawing Is The Major Part Of Every Construction Project?
Shop drawings aren’t paperwork; however, they’re the backbone of any construction project. As a dedicated shop drawing company, we turn conceptual designs into precise, buildable instructions that fabricators and installers can use with confidence. Simply put, we bring clarity that keeps trades aligned, materials accurate, and projects moving without reworks.
Facilitate Fabrication and Installation
Our construction shop drawings remove guesswork. Every dimension, tolerance, and connection is clearly defined, so fabricators build it right the first time. Using our services, installers don’t pause to interpret intent; however, they follow a clear roadmap, which helps them save hours on site and avoid costly rework when the deadline is near.
Documentation for Future Reference
Our team thinks about long-term benefits. We make our shop drawings a reliable record of what was actually built and not what was imagined. When renovations, inspections, or maintenance come up later, you’ve got accurate documentation ready. So, there will be no digging through emails and assumptions; you will have just transparent, dependable reference material in your hands.
Enhanced Communication and Coordination
Construction falls apart when teams work in isolation. Our shop drawing services in Montana keep everyone on the same page, including architects, engineers, subcontractors, and GCs. This way, conflicts get spotted early, RFIs drop, and coordination meetings get shorter. And instead of fixing problems in the field, we help you solve them on paper timely.
Start With Shop Drawing Services in Montana To Ensure You Are Going The Right Way!
Professional Shop Drawings For All CSI Trades
Construction isn’t about a single trade; however, it involves dozens working at once. And contractors want multiple trade services from one spot. If you are one of these contractors, we are here your help.
As a full-service shop drawing company in your state, we support all CSI MasterFormat divisions, with precision matters the most. In other words, our drawing expertise goes beyond architectural plans, breaking down manufactured and system-specific components into fabrication-ready instructions.
From steel to MEP, we make sure every trade expert knows exactly what to build, how to install it, and where it fits. Here are the details of our trade-specific shop drawing services.
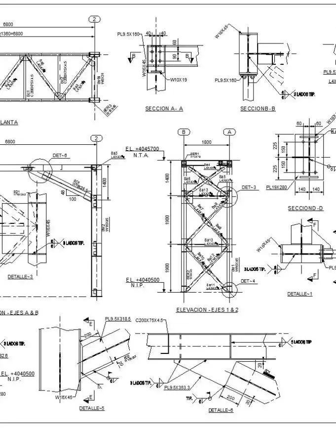
Steel Shop Drawing Services
Our steel shop drawings define member sizes, connection details, bolt grades, and erection sequences. They guide fabrication and field assembly, reduce misfits, support structural loads, and keep schedules on point by resolving coordination issues before steel reaches the site.
Electrical Shop Drawing Services
You can hire us for electrical shop drawing services in Montana. We include map conduits, panels, circuits, and routing with exact elevations in the assessment. Our reports help you avoid clashes and balance loading issues, as well as simplify inspections and give clear installation paths that save time, reduce rework, and keep power systems code compliant.
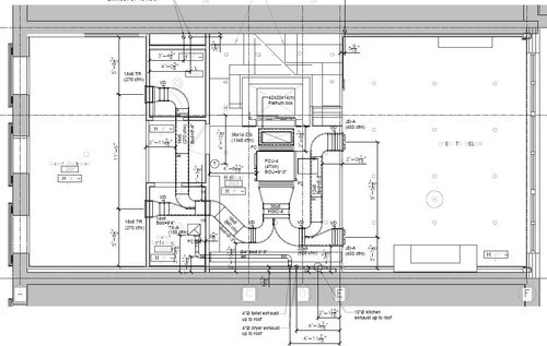
Mechanical Shop Drawing Services
We provide mechanical shop drawings to clarify HVAC layouts, equipment placement, airflow paths, and service clearances. Our team coordinates ductwork, piping, and controls, helping teams install systems correctly, meet performance requirements, and avoid costly conflicts.
Pipe Spool Shop Drawing Services
At CAD Drafters, you can get the best pipe spool shop drawing services. We break systems into prefabricated sections with exact dimensions, welds, and connection points, supporting speedy shop fabrication, improved fit-up, reduced waste, and helping labor install piping efficiently.
Facade Shop Drawing Services
Our facade shop drawings detail panel layouts, anchorage, tolerances, and interfaces with structures. With precise drawings, we ensure alignment, weatherproofing, and thermal performance, helping installers achieve architectural intent while avoiding leaks, movement issues, and costly facade rework later.
Millwork Shop Drawing Services
We provide millwork shop drawing services in Montana that capture custom joinery, dimensions, finishes, and hardware requirements. Through this data, we guide fabrication and installation, ensure pieces fit perfectly onsite, and help deliver consistent craftsmanship across cabinetry, casework, and architectural woodwork projects.
MEP Shop Drawing Services
Our MEP shop drawings combine mechanical, electrical, and plumbing systems into coordinated layouts. We identify clashes early, align elevations, and streamline installation, reducing RFIs, project delays, and field conflicts, no matter how complex or simple the job is.
Fabrication Shop Drawing Services
We create fabrication shop drawings that convert design intent into precise, manufacturable components with exact dimensions, tolerances, and material specification notes. Our reports support CNC production, reduce errors, improve quality control, and ensure fabricated parts match installation requirements.
Approaches We Use For Flawless Shop Drawings In Construction
Accuracy is integral in our process. Our strategies for all construction projects focus on reducing costs, cutting delays, and improving build quality. With outsourced shop drawing services, we maintain clear feedback loops, strict revision tracking, and 24/7 support so every stakeholder works from the latest, most accurate data.
Multi-Stage Reviews
Each drawing passes internal QA, trade coordination checks, and constructability reviews before release. By doing so, we catch errors early and mitigate them with effective plans.
Proactive Coordination
We coordinate directly with architects, engineers, and subcontractors to resolve conflicts before fabrication begins. This reduces the need for rework as well as saves time and money.
Site-Informed Checks
Our shop drawings in construction reflect real site conditions, tolerances, and access constraints, enabling you to plan for them early and achieve smooth, professional fabrication on site.
Specialized Expertise
We have a dedicated team of trade-specific drafters. They handle each construction discipline professionally, ensuring technical accuracy and code-compliant detailing.
Model-Driven Drafting
Focusing on avoiding conflicts, we use BIM-based workflows to align shop drawings with coordinated 3D models. This ensures you execute the project in one go, without cost and time overruns.
Error-Free Workflow
Weare are known for providing error-free construction drawings. Version control, revision logs, and approval tracking eliminate outdated drawings from our circulation, helping you move ahead with confidence.
Shop Drawing Services Aligned With Montana Building Codes
Code compliance is foundational in our shop drawing services in Montana. During translating design intent into buildable instructions, we ensure that we meet local building regulations. When drawings align with local rules, inspections go smoother, liability drops, and trades install with confidence, knowing nothing needs rework later.
Here is how we incorporate local building codes into our shop drawing in construction.
- Incorporated energy efficiency and insulation requirements per local regulations
- Ensured ADA and accessibility compliance where required by project scope
- Integrated fire safety, egress, and life-safety compliance into all applicable systems
- Coordinated with structural load, seismic, and wind requirements specific to Montana regions
- Reviewed against Montana state and local building code requirements for every applicable trade scope
- Maintained clear revision history for inspector and authority review
- Applied local electrical and mechanical code interpretations accurately
- Verified material specifications meet ASTM and state-approved standards
- Prepared drawings to support fast approvals and minimal field corrections
- Cross-checked with approved permit drawings to ensure alignment and inspection readiness
Our Digital & Transparent Shop Drawing Process
Transparency is considered from the initial to the last phase in our shop drawing services in Montana. We use shared cloud platforms, CAD, and BIM tools so everyone sees the same updates in real time, remotely. So, there is a need for financial surprises, outdated files, and project delays.
Creation and Detailing
We first build drawings using coordinated CAD and BIM models, translating design into fabrication-ready details. Every connection, dimension, and tolerance is defined so trades can build without second-guessing anything.
Digital Review and Coordination
Stakeholders then review drawings digitally with tracked comments and revisions. Conflicts get resolved early, approvals move faster, and everyone stays aligned without endless email chains.
Fabrication, Installation, & Ongoing Support
Once approved, shop drawings support fabrication and on-site installation. And if questions pop up? We stay available to clarify, revise, and keep work moving.
Why Should You Work With Our Team?
Experience matters when you compare the top local shop drawing companies. Our certified drafters and BIM specialists bring 2+ decades of field-tested knowledge to every construction project. We consistently rank among the top 5 firms, and clients trust our accuracy, responsiveness, and technical knowledge across both simple and complex builds.
Get Ongoing Support!
We don’t disappear after drawing submission; revisions, clarifications, and coordination support stay available throughout the construction cycle. You can conatct us any time; we remain available 24/7.
Experinece 100% Satisfaction!
We provide clear construction shop drawings, leading to fewer RFIs, smoother installs, and efficient outcomes within budget and timelines. Our team delivers excellence, and you get satisfied.
Get Quick Delivery!
There is no need to worry about the project deadline. We take 24-72 hours to submit your shop drawing documents, all without cutting corners.
Tools and Technology Behind Our Shop Drawings
Comprehensiveness and dependability are what we ensure in our shop drawing services in Montana. Using modern tools and technology emerging in the construction world, we automate operations, remove human errors, and deliver results that are actually worth it for your businesses. Going into details, we use AutoCAD for detailed 2D drafting. Similarly, Revit is used for BIM-based modelling as well as avoiding project coordination issues. Furthermore, BIM 360 and cloud platforms are used to ensure everyone in the team has access to the latest version of the document.
At CAD Drafters, we also use Bluebeam, PlanSwift, and many other software systems to keep things on track and ensure you win the contract. Not only during the process, but we also keep comprehensiveness in our final reports. You will receive reports showing details on smooth fabrication, no matter what the CSI trade is.
So if you want to experience quick reviews with no conflicts, contact our team. We will give you a response within 10 to 15 minutes and resolve the issues as soon as possible. Our team will manage all the documents and details.
What Our Clients Say
FAQs
Do you handle revisions if project designs change?
Yes. Design changes happen. We track revisions, update drawings quickly, and ensure everyone works from the latest approved set.
Can you coordinate shop drawings across multiple contractors?
Yes. Multi-trade coordination is a core part of our process, especially for complex MEP and structural projects.
Do you provide material takeoffs with your drawings?
Yes. When required, we include accurate material takeoffs tied directly to approved shop drawings.
Do you offer on-site consultation for complex projects?
For large or high-risk construction projects, yes. We support teams on-site or remotely to resolve technical issues fast.