Cabinet & Built-In Shop Drawing Services For Millwork Contractors
When it comes to high-end millwork, a fraction of an inch is the difference between a perfect fit and a costly field modification. We provide the technical backbone for woodshops and interior designers, delivering cabinet shop drawings that bridge the gap between creative vision and the CNC router. Our drawings ensure that every gable, toe-kick, and crown molding aligns with surgical precision.
2009
BIM Enabled Since
AWI Standard
Compliant Detailing
Color-Coded
Layouts and Detailed Sections
Exceptional Cabinetry & Millwork Drafting Services
Every space has its own rhythm, and off-the-shelf solutions rarely fit the bill. Our cabinet shop drawing services are designed for custom shops that handle unique residential and commercial interiors where standard dimensions don’t apply. Here are some of our premium millwork drafting services:
Wall Paneling and Wainscoting Coordination
Often paired with cabinets, we provide shop drawings for wall treatments that ensure the panel lines align perfectly with the cabinet heights and door styles for a unified architectural statement.
Vanity and Bathroom Millwork Drawings
We provide precise cabinet drawings for bathroom vanities, accounting for vessel sinks, undermount bowls, and the necessary "U-shape" drawer cutouts required to clear plumbing traps.
Reception Desks and Nurse Stations
These high-profile pieces often involve curved surfaces and mixed materials. Our cabinet shop drawing services include the complex geometry required for radius work and stone-to-wood transitions.
Commercial Casework Shop Drawings
For hospitals, schools, and offices, we produce shop drawings for cabinets that meet heavy-use industrial standards. We focus on durability, plastic laminate (PLAM) application, and hardware longevity.
Custom Wine Cellars and Bar Detailing
We detail climate-controlled wine storage and home bars, ensuring that the cabinet shop drawings account for bottle dimensions, glass-door hardware, and integrated refrigeration venting.
Closet and Wardrobe System Detailing
Our built-in shop drawings for walk-in closets include specialized shoe racks, pull-out hampers, and adjustable shelving arrays, optimized for both aesthetic appeal and maximum storage density.
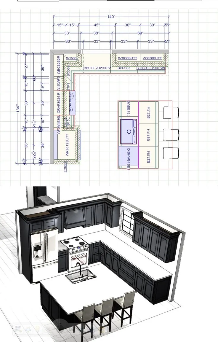
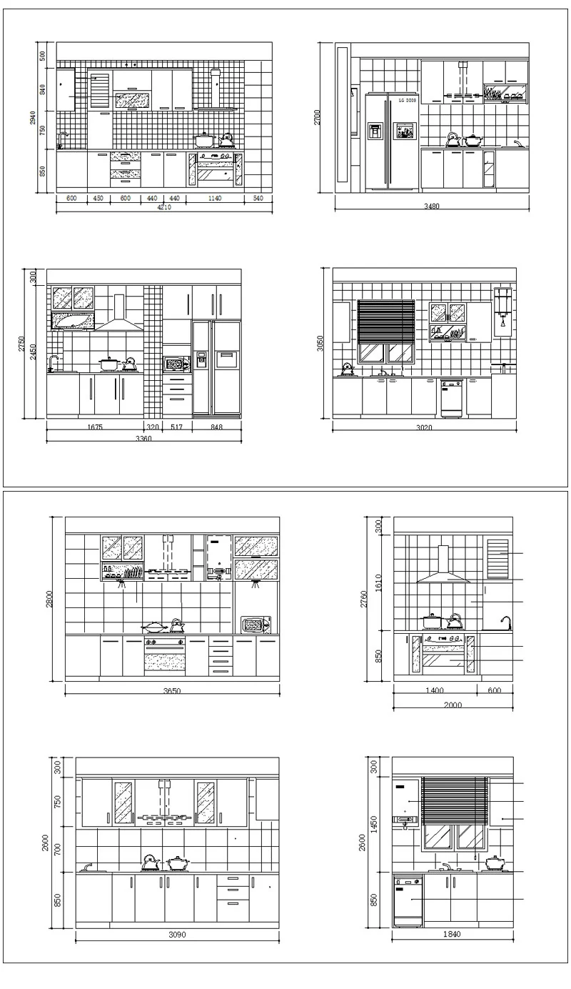
Kitchen Cabinet Shop Drawings
The kitchen is the most complex room in any build. We provide kitchen cabinet shop drawings that account for appliance specifications, plumbing clearances, and integrated lighting, ensuring that the final install is as functional as it is beautiful.
Shop Drawer Cabinet Detailing
A cabinet is only as good as its hardware. We detail shop drawer cabinet configurations with exact slide clearances, sub-front dimensions, and dovetail or dowel construction methods, tailored to your shop's specific fabrication style.
Built-in Cabinet Shop Drawings
From library bookshelves to media centers, our built-in cabinet shop drawings focus on how the millwork interacts with the existing architecture. We detail the scribes, fillers, and attachment points required for a seamless "built-in" look.
Cabinet Shop Drawings Company: Tailored for the US Market
Just like rebar detailing services in North America, millwork follows specific standards, particularly the North American Architectural Woodwork Standards (NAAWS). As a dedicated cabinet shop drawings company, we ensure your submittals speak the language of US architects and general contractors.
Whether you are a shop in California navigating strict VOC requirements or a fabricator in New York working on high-rise luxury units, our cabinet drawings are formatted to pass through the submittal phase quickly. We understand the preference for “frameless” European-style construction versus traditional “face-frame” American cabinetry. By partnering with a cabinet shop drawing company that understands the US construction cycle, you ensure that your shop drawings are ready for the job site, from Texas to Florida and everywhere in between.
Benefits of Our Cabinetry Shop Drawings
Elimination of On-Site Improvisation
Nothing kills a profit margin like a cabinet that doesn’t fit between two walls. Our built-in cabinet shop drawings rely on field-verified dimensions to ensure that scribes and fillers are properly accounted for, making installation a “plug-and-play” experience.
Faster Architect Approval
Professional, AWI-standard cabinet shop drawings instill confidence in architects and interior designers. By providing clear sections, finishes, and hardware callouts, you reduce the “request for information” (RFI) loops and get your submittals stamped “Approved as Noted” much faster.
Clear Material Take-Offs
Precision in cabinet drawings leads to precision in ordering. We provide accurate sheet counts for plywood, linear footage for moldings, and exact counts for hinges and slides. This prevents the “emergency run” to the hardware supplier and keeps your material costs under control.
Two Leading Services of Our Company
When it comes to detailing wooden construction elements, CAD Drafters stands out due to its accuracy and strict code compliance. We provide special 24/7 support to all of the contractors and ensure they get the best experience. Here are two primary services of our company that are related to millwork and cabinet shop drawings:
CNC-Ready Part Extraction and Nested Layouts
We don't just stop at the visual submittal. A premier service of our cabinet shop drawing services is the generation of part-level data for your CNC machinery. We can extract individual components, sides, bottoms, backs, and fronts, with exact boring patterns for hinges and shelf pins. This "screen-to-machine" workflow eliminates the need for manual data entry at the shop level, reducing the risk of human error and significantly speeding up the fabrication process. It allows your shop to move from an approved drawing to a cut pile in a fraction of the time.
3D Photo-Realistic Visualization & Coordination
Sometimes, a 2D section isn't enough to help a client or architect understand a complex corner. We offer 3D modeling as part of our built-in shop drawings process. This allows you to show the client exactly how a "magic corner" hardware piece will function or how the grain will flow across a continuous bank of drawers. More importantly, it allows us to coordinate with the MEP trades to ensure that the electrical outlets and plumbing stubs are exactly where they need to be before the cabinets arrive on-site.
Trusted Clients




Reasons Why We Are Better Than Other Cabinet Shop Drawing Companies
- Hardware-Agnostic
- Fabrication-Savvy
- Fast Turnaround
- Direct Communication
- Comprehensive BOMs
- Proven US Reliability
- AWI Standard Expertise
- Multi-Software Fluency
- Complex Geometry
Here Are Some Of Our Latest Testimonials
Use Our Specialized Sub-Services For Better Results
Outsource Cabinet Shop Drawings: Maximize Your Shop’s Output
For most woodworkers, the bench is where the money is made, not the computer screen. When you outsource cabinet shop drawings, you keep your best craftsmen focused on building while we handle the meticulous task of drafting. Our cabinet shop drawing companies act as your digital back-office, scaling up when you have a large project and scaling down when things are quiet.
Choosing to outsource shop drawings for cabinets to a professional cabinet shop drawings company gives you access to high-end software like Cabinet Vision, Microvellum, or AutoCAD without the expensive licensing fees and training time. Our online cabinet shop drawing services are designed to be an extension of your shop floor. We use your construction methods (whether you use cam-and-bolt, screws, or blind-dados) so that the final kitchen cabinet shop drawings match your unique shop DNA.
The Projects We Worked On
Commercial Buildings
Residential Buildings
Government Structures
Hotels and Resorts
Industrial Buildings
Historic Architecturals
FAQs
What do you need to start my cabinet shop drawings?
We need architectural floor plans, interior elevations, a finish schedule, and your appliance specifications.
Can you match my shop’s specific construction methods?
Yes. Whether you build with 3/4″ or 5/8″ carcasses, use dowels or dados, we customize our cabinet shop drawings to reflect how you actually build.
Do you include hardware in the drawings?
Absolutely. Our shop drawings for cabinets include specific callouts for hinges, slides, and pull-outs, including manufacturer part numbers.
How do you handle site measurements?
We can work from your field-measured sketches or point cloud data. We always highlight where “verify in field” (VIF) dimensions are required.
Why should I choose your cabinet shop drawings company over a local freelancer?
A cabinet shop drawing company provides a team-based QA/QC approach and the software infrastructure to handle large commercial projects that a solo freelancer might struggle with.