Shop Drawing Services in Colorado
Construction in Colorado has its own rhythm — mountains in the background, unpredictable weather, and projects that move fast once the ground thaws. In all that chaos, our shop drawing services in Colorado quietly hold everything together. They’re the bridge between design intent sand what actually gets built.
At CAD Drafters, we prepare detailed, code-compliant drawings that make sure nothing gets missed on site. Our team works with architects, engineers, and contractors, helping them turn plans into accurate fabrication-ready documents. Every line, every symbol, every detail, all aligned with your project’s needs.
Healthcare Facilities
Commercial Complexes
Educational Institutions
Manufacturing Plants
Residential Developments
Hospitality & Retail Spaces
Why Should You Choose Us?
Because we actually understand how construction happens in Colorado. The weather, the materials, the code updates — they all affect how you plan, draw, and build. Our drafters adjust every drawing for local standards and field conditions, making sure submittals pass smoothly.
When you outsource shop drawing services to us, we don’t just draw; we think like builders. That’s why so many Colorado contractors count on us — our drawings aren’t just technically correct, they’re practical.
Area Specific Shop Drawings
Denver and the Front Range are still building steadily, even as budgets tighten. Construction employment in the Denver metro increased year-over-year into 2025, showing continued demand for skilled trades and detailing work. That makes accurate construction shop drawings more important than ever: small mistakes cost more now.
Code-Compliant Shop Drawings
Local permitting and plan-review windows have shifted recently because Denver adopted updated building and fire codes (the 2025 Denver Building and Fire Codes), which take effect at the end of 2025. Projects may use 2022 or 2025 codes depending on submission timing. We track that so your submissions match current expectations.
Local Cost Data
Material and unit-price movement is real in Colorado — earthwork, asphalt, and other subgroups saw noticeable quarter-to-quarter changes in 2025. We use up-to-date local cost data when preparing material lists and when estimating coordination impacts, so your budget alignment is realistic.
Reach out today for a quick quote or a sample drawing — we’ll show you how clean and construction-ready your next set can be.
Range of Our Services
General contractors, fabricators, architects, and mechanical/electrical subcontractors across Denver, Boulder, Colorado Springs, Fort Collins, and the mountain towns. Whether it’s a downtown high-rise curtain wall, a hospital MEP coordination job, or prefabricated steel for a mountain lodge — we adapt to site constraints, winter logistics, and regional materials.
Unlike other shop drawings companies, we make shop drawings that builders, fabricators, and installers can use without second-guessing. Structural steel, curtain wall, millwork, MEP coordination — we produce detailed, dimensioned drawings, material lists, and clear annotations so installers know what to do the first time. We check clashes, call out field tolerances, and adapt drawings to Denver/Colorado permitting requirements when needed. Think fewer RFIs, fewer change orders, and fewer “oops” moments on site.
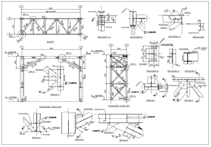
Steel Shop Drawing Services
When you hire us for electrical shop drawing services, we detail the routes of wiring and conduits, give points on circuit breakers, load distribution, and panel boards, as well as the exact placement of the switches, light fixtures, and other electrical equipment.
Mechanical Shop Drawing Services
In mechanical shop drawings, we provide information that gives comprehensive details on HVAC system layout, fabrication, and ductwork units. It also gives details on equipment and material specifications and the installation method for the ventilation system.
Pipe Spool Shop Drawing Services
Our pipe shop drawings provide 3D views of pipes, highlighting dimensions, cut lengths, and connection details. It also includes Bill of Materials (BOM), welding details and a precise guide on on-site fabrication.
Facade Shop Drawing Services
Colorado means you are on the way to getting reports that cover material specifications, grade, and finishing. It also includes dimensional data for precise sizing and cuts, and fits. The most suitable attachment methods are also highlighted in the assessment.
Millwork Shop Drawing Services
Our millwork shop drawing experts provide accurate details on dimensions, material specifications, perfect for particular construction, connection points, as well as hardware and accessory specifications.
MEP Shop Drawing Services
In our MEP shop drawings, we help you identify clashing points and mitigate them with practical methods, ensuring smooth project coordination. Seamless coordination layouts are designed with proper system integration for perfect project management.
Fabrication Shop Drawing Services
In our fabrication shop drawings, you get assembly illustrations with comprehensive details on multiple components that fit together, individual components to give accurate measurements, and cutting lists for material quantities.
How Our Team Works
Construction in Colorado is different. You’re building through snow one month, heat the next — and every phase has its own set of challenges. That’s where precise shop drawings in construction step in. They take design intent and turn it into something real, workable, and accurate.
At our shop drawing company, we keep our process simple and fast because we know your time matters. Most projects take 24–48 hours, depending on complexity. And if you’re working on a tight bid, we can rush without cutting corners.
Initial Assessment
You send plans, specs, and any vendor/shop notes, helping us understand the project scope. This ultimately supports precise and accurate drawings for a construction project.
Review & Questions
We review and flag code or constructability questions early. (We know Colorado just adopted new building and fire codes; we plan around that so submissions aren’t held up.)
Modeling
We model and detail (Revit or CAD, whichever your team uses). It makes future changes seamless for all parties.
Project Coordination
We run coordination checks — structural vs. MEP vs. architecture. We mark clashes and propose fixes.
Approval from Your Side
You get a draft review. You approve or request small changes. We made it, and everything is fixed.
Final Submission
We deliver stamped-ready shop drawings and fabrication files. Go ahead and ensure your success now!
Comprehensive Services Making Your Project a Success
Using proven protocols, we provide shop drawing services in Colorado that build your confidence to work on your targeted project efficiently. Our team factors in all the technicalities of the project, missing nothing, so that you can drive your project seamlessly.
- Include precise measurements and dimensions.
- Performance and aesthetics are balanced with a fine finish.
- Shop drawings that highlight the specs of the materials.
- Quality checks are done before the final submission of the documents.
- The most suitable fabrication method is underlined.
- Unlimited revisions are provided for successful project execution.
- Detailed connection points are given with high-quality visuals.
- Standard formats are used for consistency in each point.
- Coordination with all systems, like MEP, is ensured.
- Verification is done both manually and digitally for foolproof shop drawings.
Construction Projects We Deal With
Our team supports almost every construction trade in Colorado — from commercial builds to infrastructure projects. Whether it’s a steel frame, a retail interior, or a mechanical layout, we’ve got it covered.
Residential Shop Drawings
It includes single-family homes, multi-family homes, modular homes, custom-built homes, and other residential projects you deal with.
Commercial Shop Drawings
In this domain, we provide shop drawing services in Colorado for offices and mixed-use, health care facilities, educational institutions, and retail spaces.
Industrial Shop Drawings
It covers warehouses, manufacturing plants, power generation hubs, data centers, flex buildings and R&D buildings.
Tailored Shop Drawings Powered By All Technicalities
Accuracy and clarity come first. But that’s not all. We care about how our drawings feel to read — organized, neat, and made for field use. No clutter, no confusion, no missing dimensions.
Coordination Experience
Our team reviews conflicts between trades before drawings are finalized.
Transparent Pricing
No surprises. You know exactly what you’ll pay before we start.
Fast & Clear Communication
You’ll always know where your project stands.
What Makes Our Shop Drawing Services in Colorado Stand Out
Because we speak your language, we understand what it feels like to face a tight submittal deadline, a picky inspector, or a last-minute design change. Our team doesn’t send drafts and disappear — we stay in touch until your project is approved and running clean.
Colorado projects have unique demands — from snow load considerations to energy code compliance — and our shop drawing services in Colorado adapt to those realities. Whether you’re building a retail space downtown or a ski lodge up in the mountains, our plans reflect real field conditions, not just what looks good on paper.
During creating technical drawings, we focus on accuracy, speed, and communication. Every project has a dedicated drafter who keeps you updated at every stage. We also ensure our drawings meet both national and local standards — so submittals don’t bounce back.
Plus, we know budgets matter. That’s why our pricing is transparent, fair, and designed to help you win more bids without stretching your team. At the end of the day, our goal is simple — to make your job easier and your builds more predictable. Contact us now!
Here’s What Our Clients Say
FAQs
Do you provide stamped shop drawings in Colorado?
Yes, we can coordinate PE stamping if your project requires it.
Can you match our drawing format or title block?
Absolutely. We customize every project to your preferred standards.
Do you offer MEP coordination for Colorado projects?
Yes. Our MEP team checks for clashes and helps streamline coordination before submission.
What’s the typical turnaround time?
Usually 24–48 hours for small to medium scopes. Larger coordination projects may take longer, but we always give a clear timeline upfront.